| 건물명 | Waiea | 와이에아 | 지역 | Kakaako 카카아코 |
|---|---|---|---|
| 주소 | 1118 Ala Moana Blvd., Honolulu, Hawaii 96814 | ||
| 대지면적 | 81,446 Sqft. (약7,574㎡ / 2,280평) | 준공 연도 | 2016년 |
| 유닛수 | 171 | 층수 | 36 |
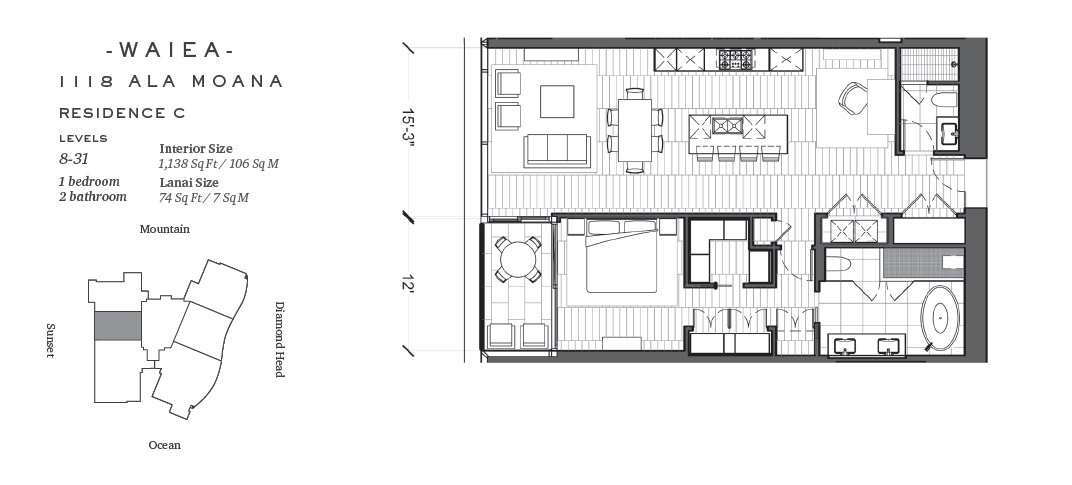
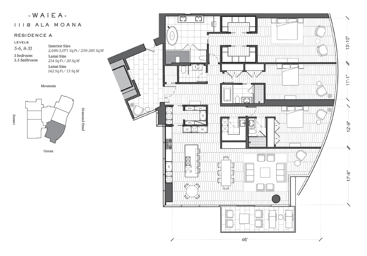
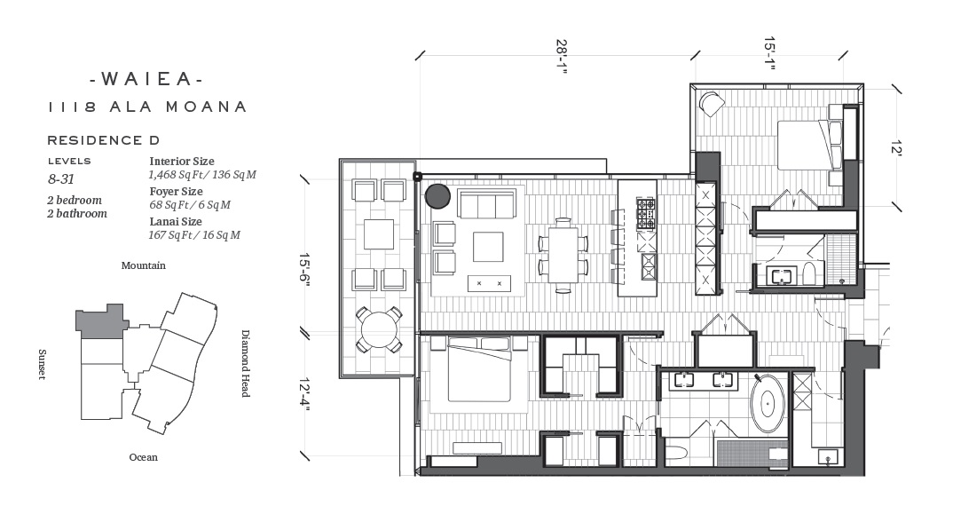
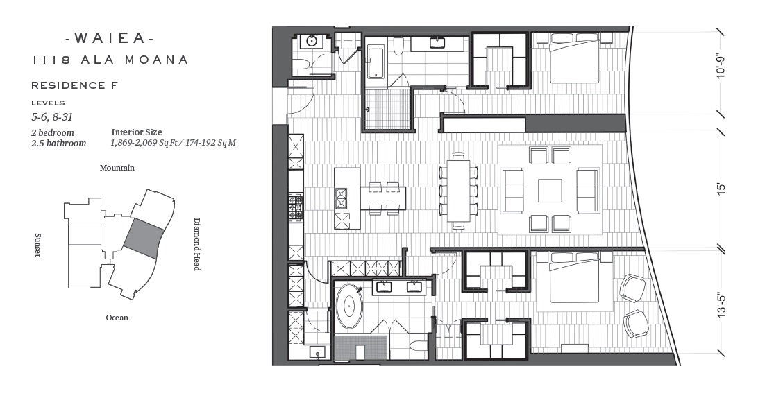
| 유닛 구성 | 침실수: 1~4 / 욕실 수 1~4 / 주차장 1대 포함. | ||
| 전용면적 | 1,139~8,516 Sqft. (약106~792㎡/32~228평) | ||
| 실내설비 | 오븐 레인지 , 냉장고, 식기세척기, 전자레인지, 와인쿨러, 세탁기 , 건조기 | ||
| 어메니티 / 커뮤니티 시설 | 【실내 시설】 피트니스 센터 / 스팀 사우나 / 드라이 사우나 / 시어터룸 / 프라이빗 다이닝룸 / 도서관 / 오너스 라운지 / 실내 골프 시뮬레이터 / 게스트용 스위트룸 / 컨시어지 서비스 【야외 시설】 수영장 / 자쿠지 / 풀사이드 카바나 / BBQ 공간 / 반려견 공원 / 어린이 놀이터 | ||
| 가격대 | $2,000,000~$25,000,000 | 소유형태 | 완전소유권 |
| 유지비 / 관리비 | 관리비:약 $1,500~$11,100 고정자산세:약$1,160-$15,00 특별부담금: 기타: 합계:$2,660~$26,100 | ||
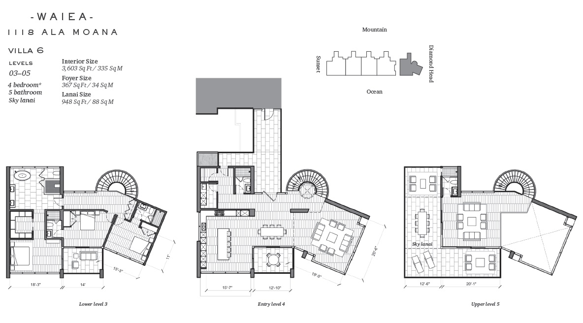
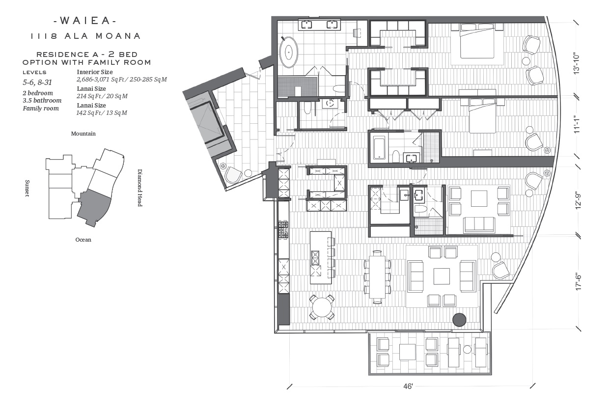
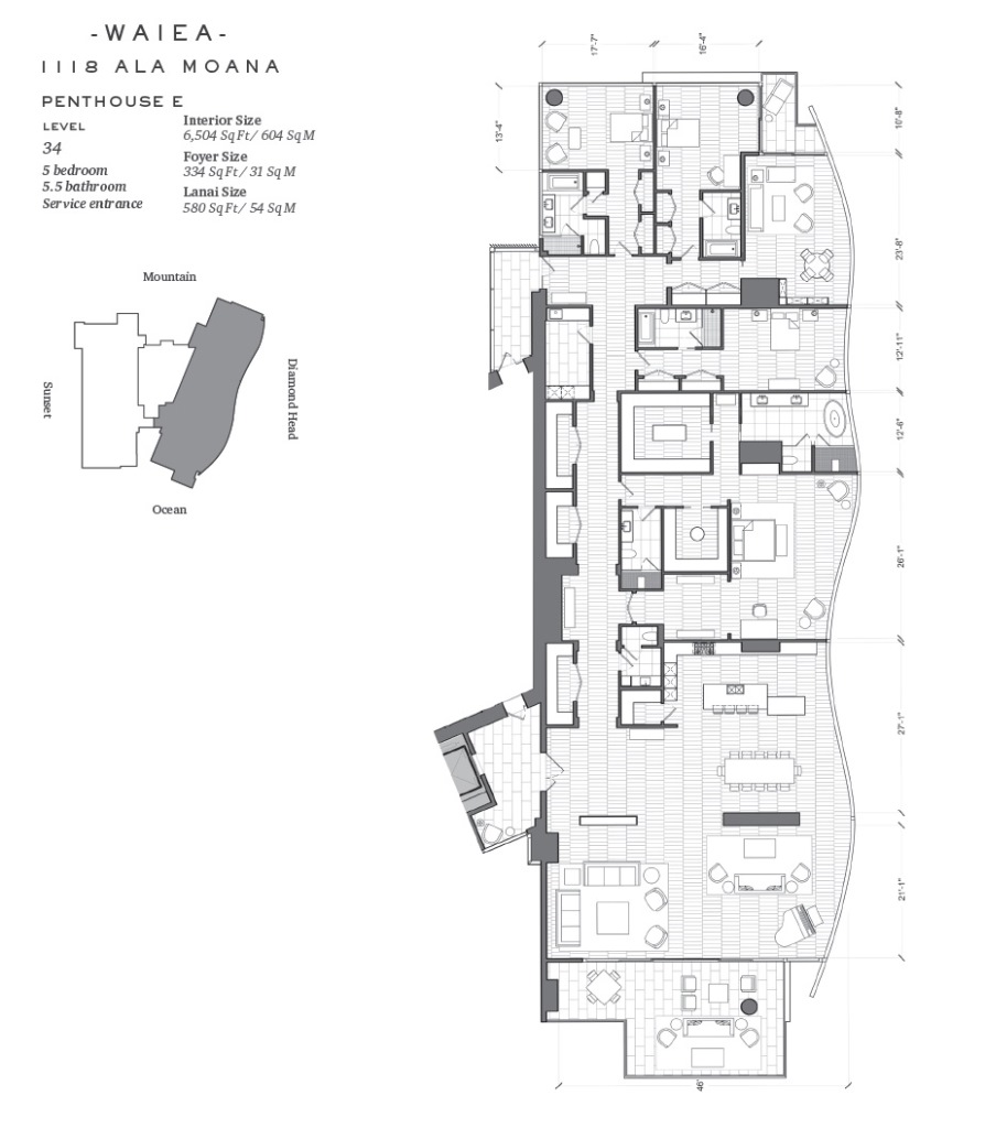
| 유닛 구성図 | 펜트하우스 A 펜트하우스B 펜트하우스C 펜트하우스D 펜트하우스E 펜트하우스F 32-33층 플로어플랜 8-31층 플로어플랜 레지던스 A 레지던스 A와 F 통합형 플랜 레지던스 A (2베드 + 패밀리룸) 레지던스 B 레지던스 B (2베드 + 패밀리룸) 레지던스 C 레지던스 D 레지던스 E 레지던스 E (2베드 + 패밀리룸) 레지던스 F 빌라 1 빌라 2 빌라 3 빌라 4 빌라 5 빌라 6 빌라 7 빌라 8 빌라 9 빌라 10 | ||
| 추가 설명 | 「와이에아(Waiea)」는 카카아코 지역의 도시 개발을 주도하고 있는 ‘하워드 휴즈(Harwood Hughes)사’가 개발한 하이엔드 콘도미니엄으로, 36층 규모의 타워 레지던스와 10세대의 빌라 타입으로 구성되어 있습니다. 타워 레지던스는 바다 방향과 산 방향 각각의 엘리베이터 홀이 분리되어 있어 높은 프라이버시를 제공하며, 특히 바다 쪽 유닛에는 전용 엘리베이터 홀이 마련되어 있습니다. 빌라 타입은 저층 레지던스로 구성되어 있으며, 알라모아나 거리와 접한 그라운드 플로어 빌라는 2층 구조에 전용 수영장이 포함되어 있고, 3층 이상 빌라 타입은 6층까지 이어지는 3층 구조로 설계되어 있습니다. 입주자의 쾌적한 생활을 위해 빌딩 컨시어지는 5성급 호텔 수준의 서비스를 제공하며, 편리한 생활 환경을 자랑합니다. 1층, 워드 시네마 쪽에는 다양한 요리를 즐길 수 있는 “로바타 진야(Robata Jinya)”가 입점해 있고, 오가닉 슈퍼마켓 ‘홀푸드(Whole Foods)’와 일본식 베이커리도 도보 거리에 위치해 있습니다. 월 관리비에는 케이블 TV, 인터넷, 가스 요금, 온수 및 수도 요금이 포함되어 있으며, 반려동물 동반도 가능합니다. | ||
● 구매를 고려 중이신 고객님께:
과거의 매매 사례와 현재 시장 동향을 바탕으로 적절한 시세를 안내해드립니다.
● 매각을 고려 중이신 고객님께:
과거의 판매 사례와 현재 시장 동향을 바탕으로 적절한 매도가격을 안내해드립니다.
● 보유 중인 부동산을 임대하고자 하시는 고객님께:
기존 임대 사례를 바탕으로 적절한 임대료 수준을 안내해드립니다.
| 매각일 | 호실 번호 | 전용면적(㎡) | 침실 수 | 욕실 수 | 표시된 가격 | 종가 | 시장 공개일 수 |
|---|---|---|---|---|---|---|---|
| 01/20/2026 | 903 | 約112 | 1 | 2 | $1,860,000 | $1,830,000 | 143日 |
| 01/15/2026 | 2102 | 約175 | 2 | 2.1 | $3,988,000 | $3,675,000 | 272日 |
| 12/19/2025 | 3001 | 約252 | 3 | 3.1 | $6,180,000 | $5,500,000 | 300日 |
| 12/17/2025 | 1203 | 約112 | 1 | 2 | $2,050,000 | $1,900,000 | 187日 |
| 12/10/2025 | 1505 | 約149 | 2 | 2 | $2,999,000 | $2,800,000 | 195日 |