| 건물명 | MUSE HONOLULU | 뮤즈 호놀룰루 | 지역 | Ala Moana アラモアナ |
|---|---|---|---|
| 주소 | 1538 Kapiolani Blvd., Honolulu, Hawaii 96814 | ||
| 대지면적 | - | 준공 연도 | 2028년 오픈예정 |
| 유닛수 | 315 | 층수 | 40층 |
| 유닛 구성 | 스투디오, 1배드룸 ~ 3배드룸 타입 | ||
| 전용면적 | 430〜2,631 Sqft.(약40〜244m2 / 12〜73평) | ||
| 실내설비 | 오븐 레인지, 냉장고, 와인셀러, 세탁기 / 건조기 | ||
| 어메니티 / 커뮤니티 시설 | 수영장 / 자쿠지 / 냉탕 / BBQ 카바나 / 어린이 놀이터 / 프라이빗 다이닝룸 / 미디어 라운지 / 피트니스 센터 / 골프 시뮬레이터 / 도그런 / 사우나 / 스팀룸 | ||
| 가격대 | - | 소유형태 | 완전소유권 |
| 유지비 / 관리비 | 관리비:약 $570~3,480 고정자산세:- 특별부담금:- 기타:- 합계:- | ||
| 유닛 구성図 | 9층 플로어 플랜 15층 플로어 플랜 16~24층 플로어 플랜 25~33층 플로어 플랜 34~36층 플로어 플랜 37층 플로어 플랜 38층 플로어 플랜 | ||
| 추가 설명 | MUSE Honolulu는 카피올라니通(카피올라니 스트리트) 변에 위치하며, 알라모아나 쇼핑센터 바로 뒤에 자리잡고 있습니다. 와이키키와 카카아코 등 활기찬 지역으로의 접근성도 뛰어나, 도시적인 라이프스타일을 즐기기에 최적의 입지입니다. 총 315세대의 유닛은 스튜디오, 1베드룸, 2베드룸, 3베드룸 타입으로 구성되며, 선택 가능한 스타일은 타운홈, 로프트, 타워 레지던스로 나뉩니다. 타운홈은 7~8층에 위치한 단 6세대의 한정 유닛으로, 어메니티 덱과 인접해 있으며, 거실의 층고는 약 7미터(23피트)에 달해 개방감이 뛰어납니다. 실내외 공간이 자연스럽게 연결되어 엔터테인먼트 공간으로 활용하기에 탁월합니다. 로프트는 9~14층에 걸쳐 72세대가 있으며, 천장부터 바닥까지 이어지는 대형 유리창과 약 3미터(10피트) 높이의 층고가 특징입니다. 노출 콘크리트 마감으로 세련된 도심 감성을 연출합니다. 타워 레지던스는 15~37층에 237세대로 구성되어 있으며, 넓은 설계와 고급 사양이 특징입니다. 바닥부터 천장까지 이어지는 통유리 창문, 엔지니어드 우드 플로어링, Wolf사의 주방 가전, Sub-Zero 냉장고, Studio Becker Architect Collection의 고급 캐비닛 등이 설치되어 있어 태평양, 산, 호놀룰루 스카이라인의 파노라마 뷰를 감상할 수 있습니다. 어메니티는 매우 다양합니다. 7층: 수영장, 온수/냉수 스파, BBQ 카바나, 어린이 놀이터, 프라이빗 다이닝룸, 미디어 라운지, 피트니스 센터, 골프 시뮬레이터 스튜디오, 퍼팅 그린, 도그파크 8층: 스팀룸, 사우나, 트리트먼트 룸, 요가 & 스트레칭 스튜디오 40층: 탁 트인 전망의 스카이라운지 24시간 상주하는 주거 전문 스태프가 입주민의 편안하고 세련된 라이프스타일을 지원합니다. 도시의 편리함과 리조트의 휴식이 공존하는 MUSE Honolulu는 하와이 고급 주거의 새로운 기준을 제시합니다. | ||




카피올라니 스트리트 변, 알라모아나 쇼핑센터의 산쪽(마우카 사이드)에 위치해 있습니다.
원 알라모아나(One Ala Moana)의 바로 뒤편에 자리잡고 있습니다.
ワンアラモアナの真裏になります。


아마나 도로에서의 외관

마카로아 st 에서 본 외관

카피올라니 스트리트에서 본 외관

카피올라니 스트리트에서 본 외관



99층의 플로어플랜: 바다를 정면으로 마주한 2개의 유닛은 각각 3베드룸 타입과 2베드룸 타입이며, 그 외에 스튜디오 타입이 2개, 1베드룸 타입이 6개, 2베드룸 타입이 2개 있습니다.

15층의 플로어플랜: 바다를 정면으로 마주한 2개의 유닛은 모두 2베드룸 타입이며, 그 외에 스튜디오 타입이 3개, 1베드룸 타입이 5개, 2베드룸 타입이 2개 있습니다.

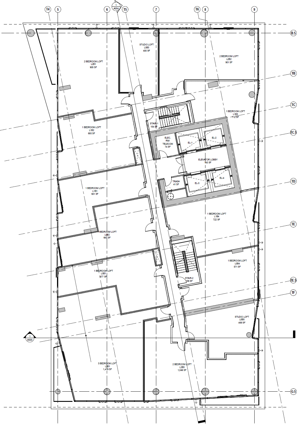
16층~24층의 플로어플랜: 바다를 정면으로 마주한 2개의 유닛은 모두 2베드룸 타입이며, 그 외에 스튜디오 타입이 3개, 1베드룸 타입이 5개, 2베드룸 타입이 2개 있습니다.

25층~33층의 플로어플랜: 바다를 정면으로 마주한 2개의 유닛은 각각 3베드룸 타입과 2베드룸 타입이며, 그 외에 스튜디오 타입이 1개, 1베드룸 타입이 3개, 2베드룸 타입이 3개 있습니다.

34층~36층의 플로어플랜: 바다를 정면으로 마주한 2개의 유닛은 각각 3베드룸 타입과 2베드룸 타입이며, 그 외에 스튜디오 타입이 1개, 1베드룸 타입이 3개, 2베드룸 타입이 3개 있습니다.

37층의 플로어플랜: 바다를 정면으로 마주한 2개의 유닛은 각각 3베드룸 타입과 2베드룸 타입이며, 그 외에 스튜디오 타입이 1개, 1베드룸 타입이 3개, 2베드룸 타입이 3개 있습니다.

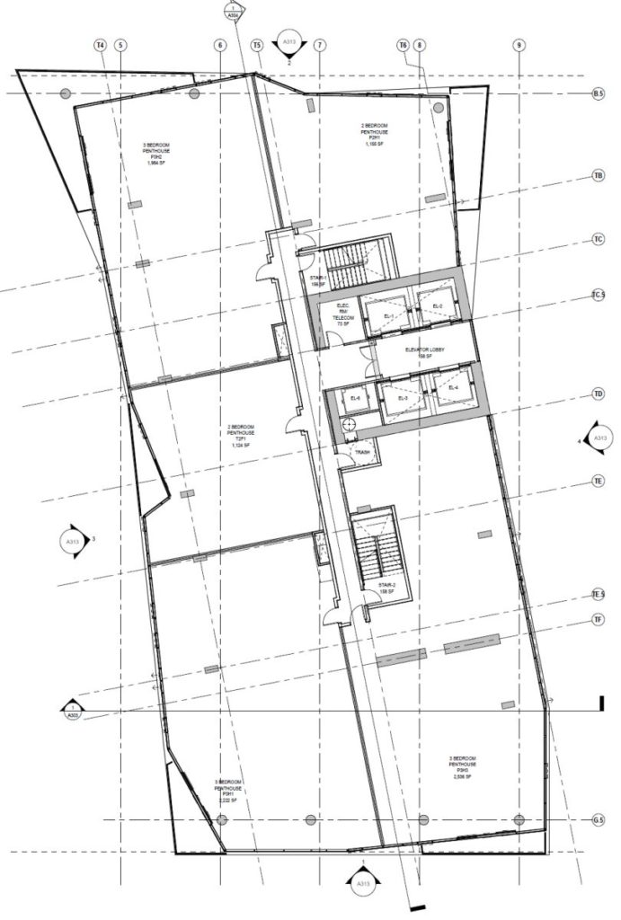
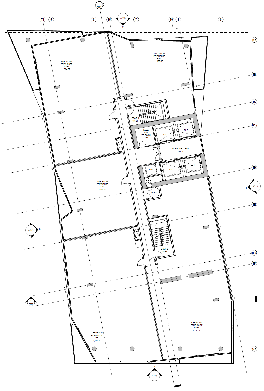
38층의 플로어플랜: 바다를 정면으로 마주한 2개의 유닛은 모두 3베드룸 타입이며, 그 외에 2베드룸 타입이 2개, 3베드룸 타입이 1개 더 있습니다.