| 건물명 | Koula | 코우라 | 지역 | Kakaako 카카아코 |
|---|---|---|---|
| 주소 | 1001 Queen St., Honolulu, Hawaii 96814 | ||
| 대지면적 | 135,747 Sqft. (約12,624㎡/3,800坪) | 준공 연도 | 2017년 |
| 유닛수 | 466 | 층수 | 38 |
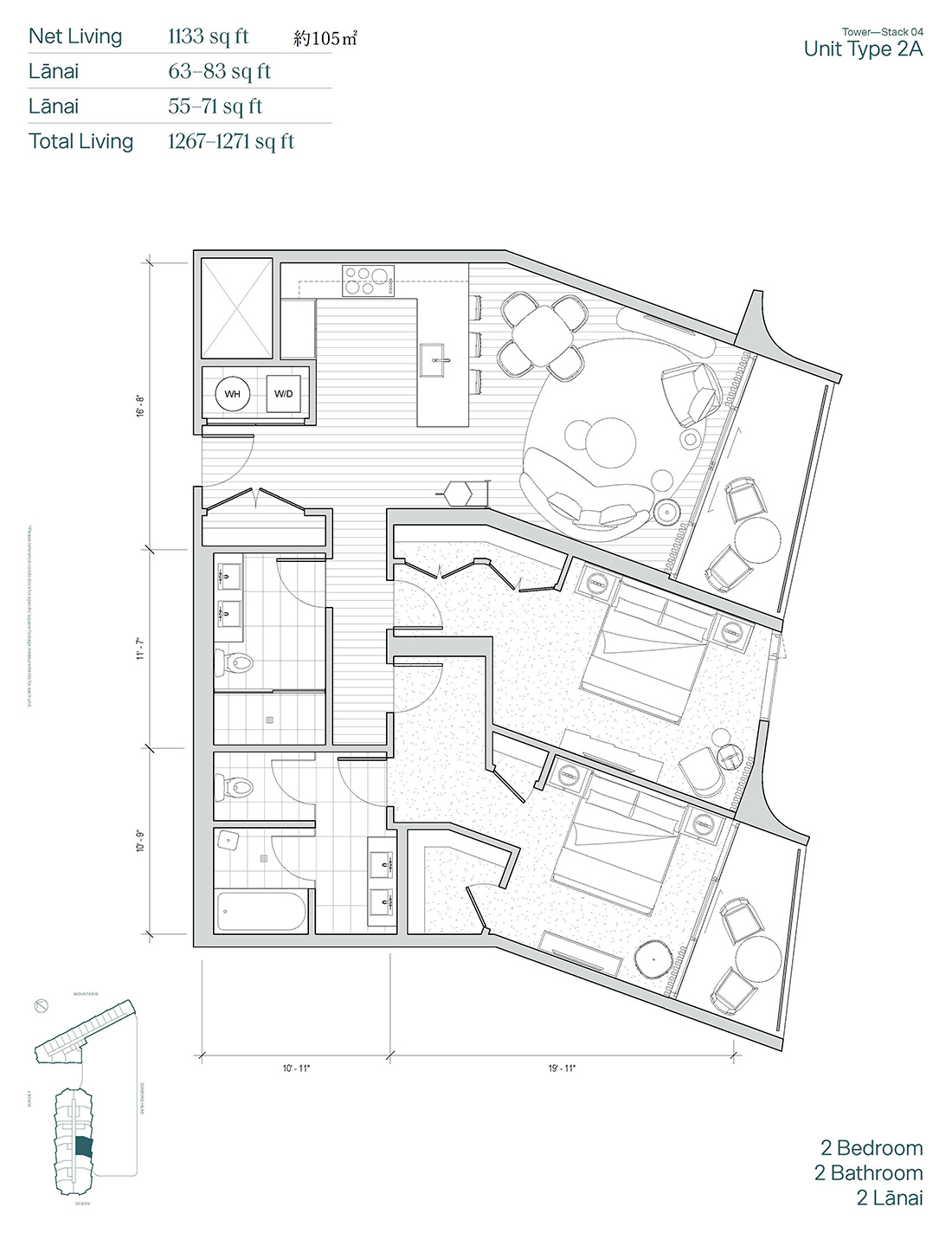
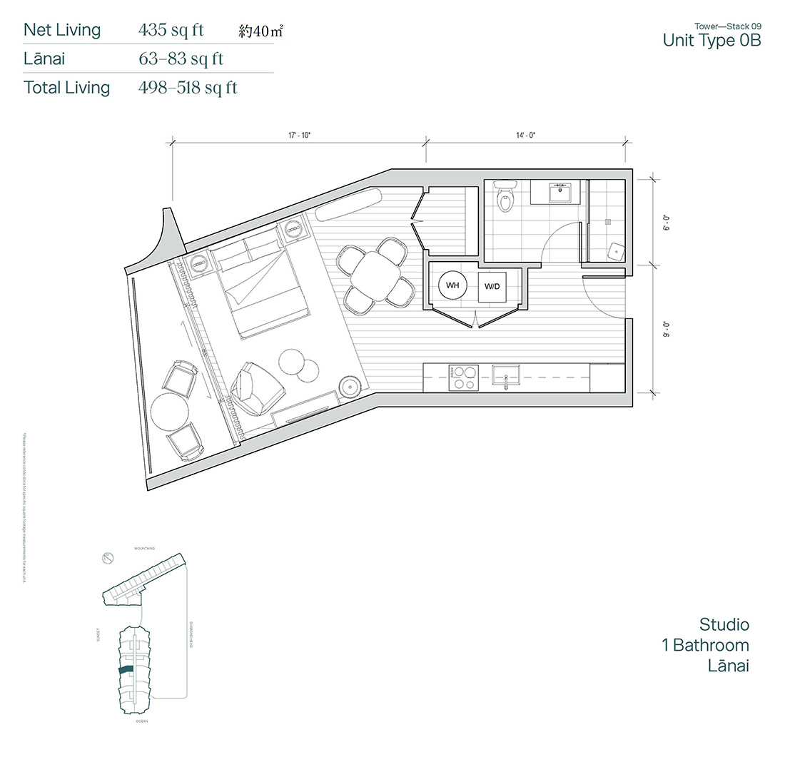
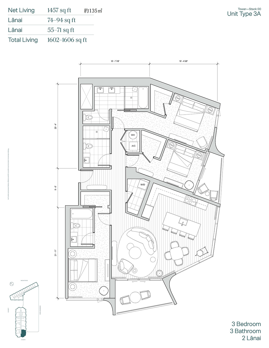
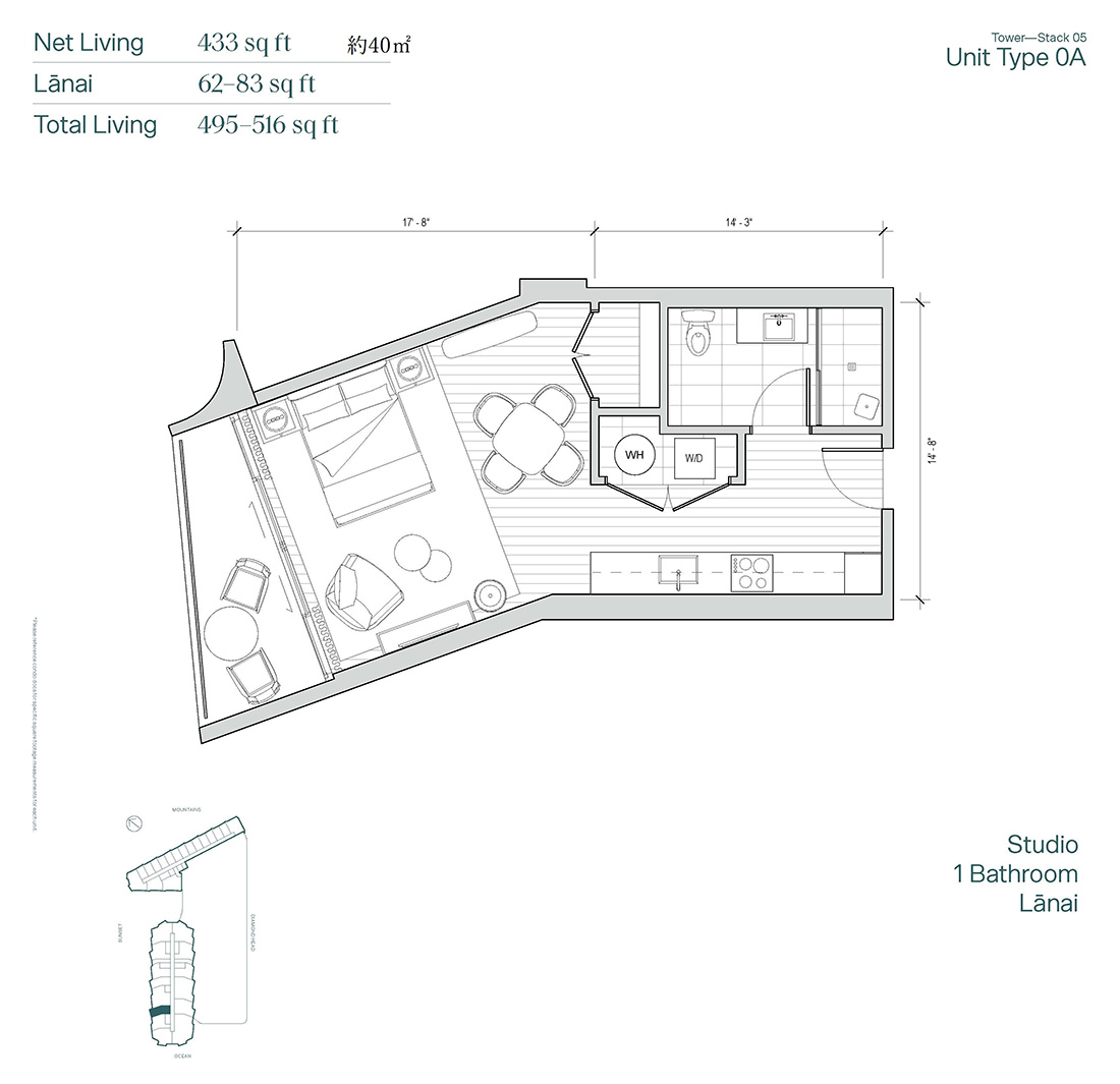
| 유닛 구성 | 침실수: 0~3 / 욕실 수 1~ | ||
| 전용면적 | 409~1,329 Sqft.(약38~125㎡ / 11~37평) | ||
| 실내설비 | 오븐 레인지 , 냉장고, 식기세척기, 전자렌지, 세탁기 , 건조기 | ||
| 어메니티 / 커뮤니티 시설 | 수영장(2곳), BBQ 카바나, 피트니스룸, 스파, 다이닝룸, 선셋 바, 키즈 코너 | ||
| 가격대 | "$570,000~$3,000,000 " | 소유형태 | 완전소유권 |
| 유지비 / 관리비 | 관리비:약 $323~$1,615 고정자산세:- 특별부담금:- 기타:- 합계:- | ||
| 유닛 구성図 | 00호 유닛 01호 유닛 02호 유닛 03호 유닛 04호 유닛 05호 유닛 06호 유닛 07호 유닛 08호 유닛 09호 유닛 10호 유닛 11호 유닛 13호 유닛 15호 유닛 | ||
| 추가 설명 | 「코우라(Kō'ula)」는 카카아코 지역 개발을 주도하고 있는 하워드 휴즈 사(Howard Hughes Corporation)가 개발한 여섯 번째 콘도미니엄입니다. 총 41층 규모의 타워 레지던스에는 565세대가 있으며, 1층은 전면 리테일(상업) 공간으로 구성되어 있고, 레지던스 로비는 2층부터 시작됩니다. 평면 구성은 스튜디오부터 1베드~3베드 타입까지 다양하며, 면적은 약 27㎡에서 139㎡입니다. 건물 옆에는 지역의 상징적인 공원인 '센트럴 플라자(Central Plaza)'가 조성되어 있고, ‘홀푸즈 마켓(Whole Foods Market)’도 도보권에 위치해 있어 생활 편의성이 뛰어납니다. 최근 오픈한 Onkee 온기 레스토랑도 영업중에 있습니다. ‘코우라(Kō‘ula)’는 하와이어로 ‘붉은 사탕수수(Red Sugarcane)’를 뜻하며, 하와이섬 힐로(Hilo)에 위치한 시그 제인 디자인(Sig Zane Designs)에서 이름을 명명하였습니다. 건물 외관 디자인은 시카고, 뉴욕, 샌프란시스코에 사무실을 둔 Studio Gang이, 인테리어는 뉴욕과 토론토에 오피스를 둔 국제적 디자인 회사인 Yabu Pushelberg가 맡아 설계했습니다. | ||
● 구매를 고려 중이신 고객님께:
과거의 매매 사례와 현재 시장 동향을 바탕으로 적절한 시세를 안내해드립니다.
● 매각을 고려 중이신 고객님께:
과거의 판매 사례와 현재 시장 동향을 바탕으로 적절한 매도가격을 안내해드립니다.
● 보유 중인 부동산을 임대하고자 하시는 고객님께:
기존 임대 사례를 바탕으로 적절한 임대료 수준을 안내해드립니다.
| 매각일 | 호실 번호 | 전용면적(㎡) | 침실 수 | 욕실 수 | 표시된 가격 | 종가 | 시장 공개일 수 |
|---|---|---|---|---|---|---|---|
| 04/21/2026 | 906 | 約59 | 1 | 1 | $858,000 | $845,000 | 152日 |
| 03/30/2026 | 1906 | 約60 | 1 | 1 | $918,000 | $918,000 | 9日 |
| 03/27/2026 | 2713 | 約69 | 1 | 1 | $948,000 | $920,000 | 318日 |
| 03/17/2026 | 3511 | 約59 | 1 | 1 | $788,000 | $801,000 | 97日 |
| 03/16/2026 | 2105 | 約46 | 0 | 1 | $635,000 | $565,000 | 339日 |
| 03/16/2026 | 2803 | 約52 | 1 | 1 | $800,000 | $815,000 | 15日 |
| 02/17/2026 | 3107 | 約96 | 2 | 2 | $1,495,000 | $1,448,000 | 156日 |
| 02/17/2026 | 1601 | 約77 | 1 | 1 | $1,512,000 | $1,420,000 | 148日 |
| 02/17/2026 | 403 | 約47 | 1 | 1 | $770,000 | $758,000 | 8日 |
| 02/04/2026 | 411 | 約57 | 1 | 1 | $858,000 | $830,000 | 38日 |
| 01/30/2026 | 2110 | 約100 | 2 | 2 | $1,388,000 | $1,340,000 | 61日 |
| 01/16/2026 | 2800 | 約135 | 3 | 3 | $2,895,000 | $2,650,000 | 97日 |
| 12/09/2025 | 501 | 約77 | 1 | 1 | $1,150,000 | $1,100,000 | 47日 |
| 12/08/2025 | 2510 | 約100 | 2 | 2 | $1,430,000 | $1,390,000 | 132日 |
| 12/05/2025 | 2505 | 約40 | 0 | 1 | $650,000 | $650,000 | 271日 |
| 12/05/2025 | 1504 | 約118 | 2 | 2 | $1,795,000 | $1,765,000 | 104日 |
| 12/03/2025 | 2503 | 約53 | 1 | 1 | $850,000 | $825,000 | 333日 |
| 11/18/2025 | 3110 | 約101 | 2 | 2 | $1,680,000 | $1,600,000 | 306日 |
| 11/14/2025 | 3809 | 約47 | 0 | 1 | $650,000 | $650,000 | 150日 |
| 10/31/2025 | 1900 | 約143 | 3 | 3 | $2,650,000 | $2,500,000 | 63日 |