
| 건물명 | Kalae | 칼라에 | 지역 | Kakaako 카카아코 |
|---|---|---|---|
| 주소 | 1000 Ala Moana Blvd., Honolulu, Hawaii 96814 | ||
| 대지면적 | 113,691 Sqft.(약10,570㎡ / 3,183평) | 준공 연도 | 2026 (오픈예정) |
| 유닛수 | 330 | 층수 | 39 |
| 유닛 구성 | 1배드~3배드룸타입 | ||
| 전용면적 | 799~1,878 Sqft.(약74~175㎡ / 22~52평) | ||
| 실내설비 | 오븐 레인지, 냉장고, 와인셀러, 세탁기 / 건조기 | ||
| 어메니티 / 커뮤니티 시설 | 오너 전용 수영장, 피트니스 수영장, 풀 키친이 갖춰진 카바나 (3채), 피트니스룸, 프라이빗 다이닝룸, 게스트 스위트 | ||
| 가격대 | $1,200,000~ | 소유형태 | 완전소유권 |
| 유지비 / 관리비 | 관리비:약 $1.27/Sqft 예정 고정자산세:- 특별부담금:- 기타:- 합계:- | ||
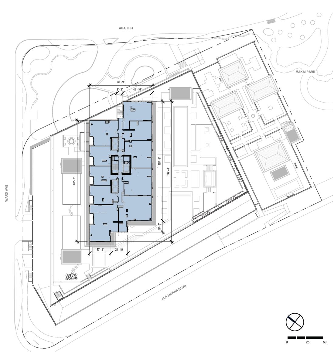
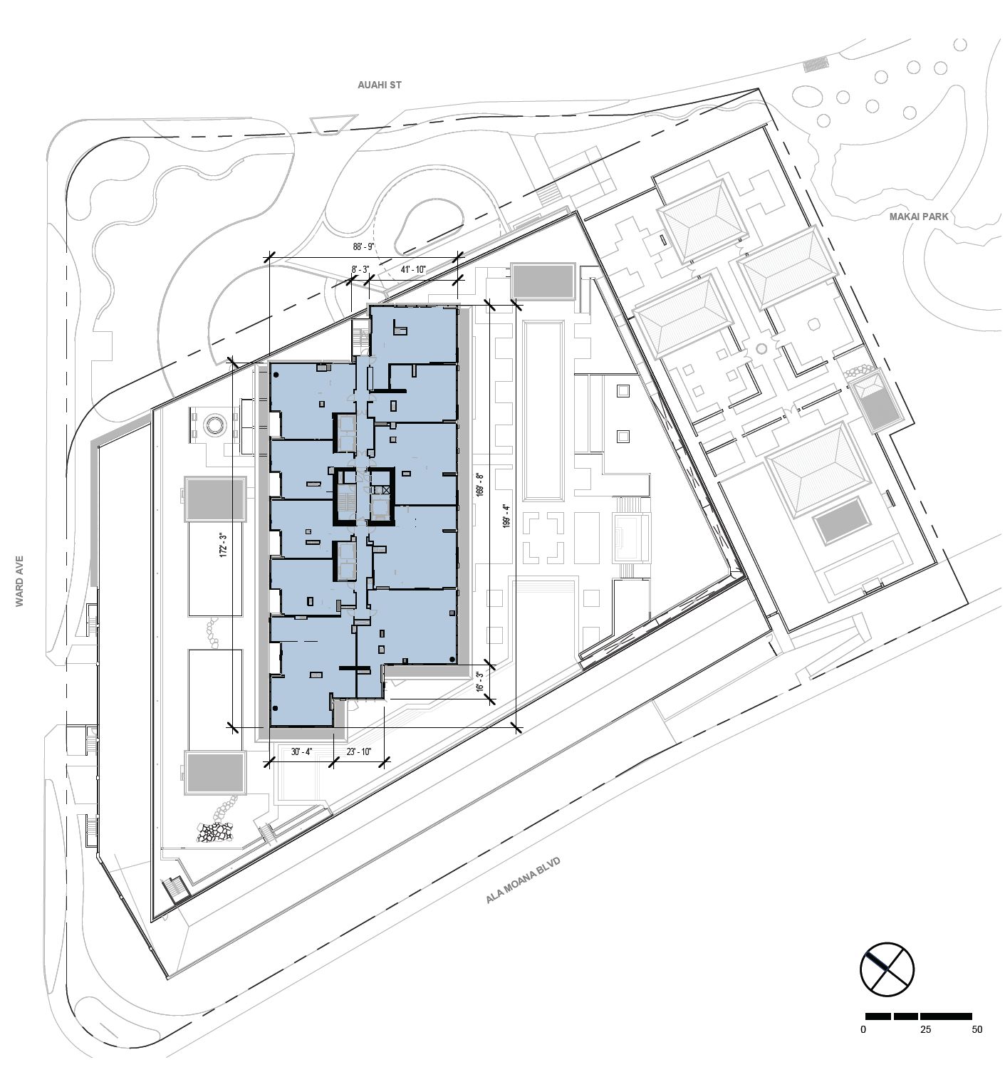
| 유닛 구성図 | 플로어 플랜 1 플로어 플랜 2 | ||
| 추가 설명 | 「카라이(Kalai)」는 하워드 휴즈사가 이끄는 워드 빌리지(Ward Village)의 10번째 레지던셜 타워로, 카카아코 지역 개발을 선도하고 있는 프로젝트입니다. 개발 신청서에 따르면 총 330세대의 주거 유닛과, 지상층에는 풀 키친이 갖춰진 카바나 3채, 5층에는 오너 전용 어메니티 데크가 조성될 예정입니다. 건물의 외관 디자인은 시카고에 본사를 둔 건축사무소 솔로몬 코드웰 벤즈(Solomon Cordwell Buenz)가 담당하며, 인테리어 디자인은 캘리포니아에 위치한 니콜 홀리스(Nicole Hollis) 사무소가 맡고 있습니다. “카라이(Kalai)”는 하와이어로 “가장 남쪽 지점”을 의미합니다. 새로운 정보가 입수되는 대로 수시로 업데이트해 드릴 예정입니다. | ||


알라모아나 거리에 건설 예정이며, 분양 예정인 ‘더 라우니우(The Launiu)’ 바로 옆에 위치합니다.




워드에비뉴와 아우아히 도로에서 본 외관

레지던스 출입구


알라모아나 블루버드와 워드의 코너에 위치해 있습니다.




워드에비뉴와 아우아히 도로에서 본 외관

레지던스 출입구

오너전용 어메니티 덱은 5층에 따로 만들어질 예정입니다. 그라운드 플로어에는 키친이 딸린 카바나3동이 있으며 그 중 1곳은 수영장이 포함되어 있습니다. 그라운드 플로어에 만들어지기 때문에 게스트들은 레지던스 타워에 들어올 필요가 없어지므로 오너용 어메니티 덱은 거주자들만 엑세스 할 수 있게 됩니다.


그라운드 플로어 풀키친이 포함된 카바나 (수영장 포함)

그라운드 플로어 풀키친이 포함된 카바나

5층의 오너 전용 어메니티데크


5층의 오너 전용 풀 (2개)


타입은 1배드룸 ~3배드룸이 있습니다. 3배드룸 타입은 바다쪽으로 위치하고 있습니다. 각층에 1배드룸 타입 4가구, 2배드룸 타입 4가구, 3배드룸 타입 2가구씩 배치될 예정입니다.


키친은 다크와 화이트 테마 중 선택하실 수 있습니다.


3배드룸 타입

2배드룸 타입