| 건물명 | 1350 Ala Moana / 1350 알라모아나 | 지역 | Kakaako 카카아코 |
|---|---|---|---|
| 주소 | 1350 Ala Moana Blvd., Honolulu, Hawaii 96814 | ||
| 대지면적 | 80,768 Sqft. (約7,591㎡/2,261坪) | 준공 연도 | 2017 |
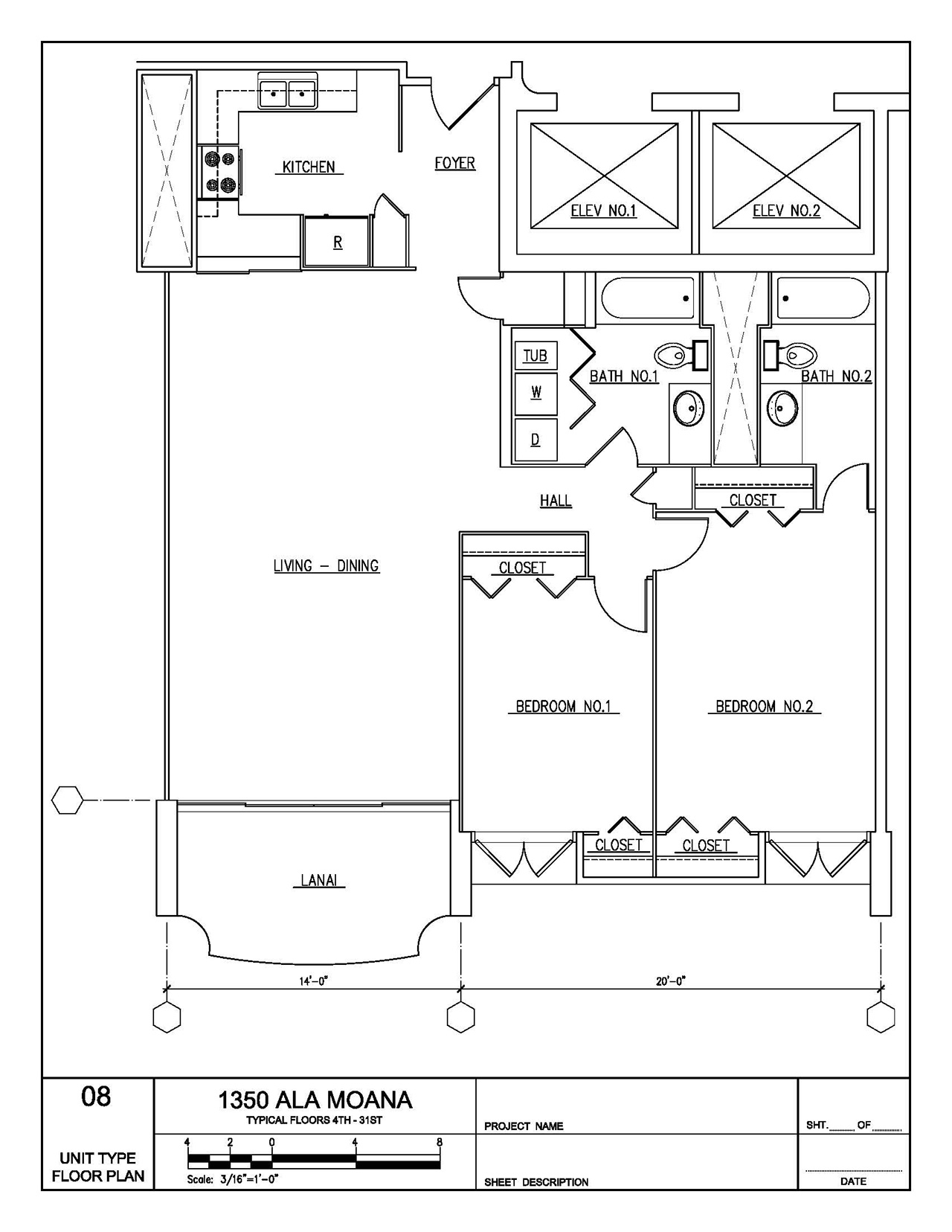
| 유닛수 | 353 | 층수 | 33 |
| 유닛 구성 | 침실수: 2/ 욕실 수 2 / 주차장 1대 포함 | ||
| 전용면적 | 933~1,551 Sqft (약86~144㎡ / 26~43평) | ||
| 실내설비 | 오븐레인지, 냉장고, 식기세척기, 세탁기, 건조기 | ||
| 어메니티 / 커뮤니티 시설 | 수영장, 자쿠지, 피트니스룸, BBQ장 | ||
| 가격대 | $400,000~$1,800,000 | 소유형태 | 완전소유권, 리스홀드 (매물에 따라 조건이 다를 수 있습니다.) |
| 토지 임대 만기일 | 7/31/2043 | 갱신일 | 2023년 |
| 어메니티 / 커뮤니티 시설 | 약 $200~$250 | ||
| 유지비 / 관리비 | 관리비: 약 $1,100 ~ $2,400 토지 임대료(리스료): 약 $200 ~ $250 재산세: 약 $200 ~ $1,160 특별 비용: 해당 없음 기타: — 총합계: 약 $1,300 ~ $3,560 |
||
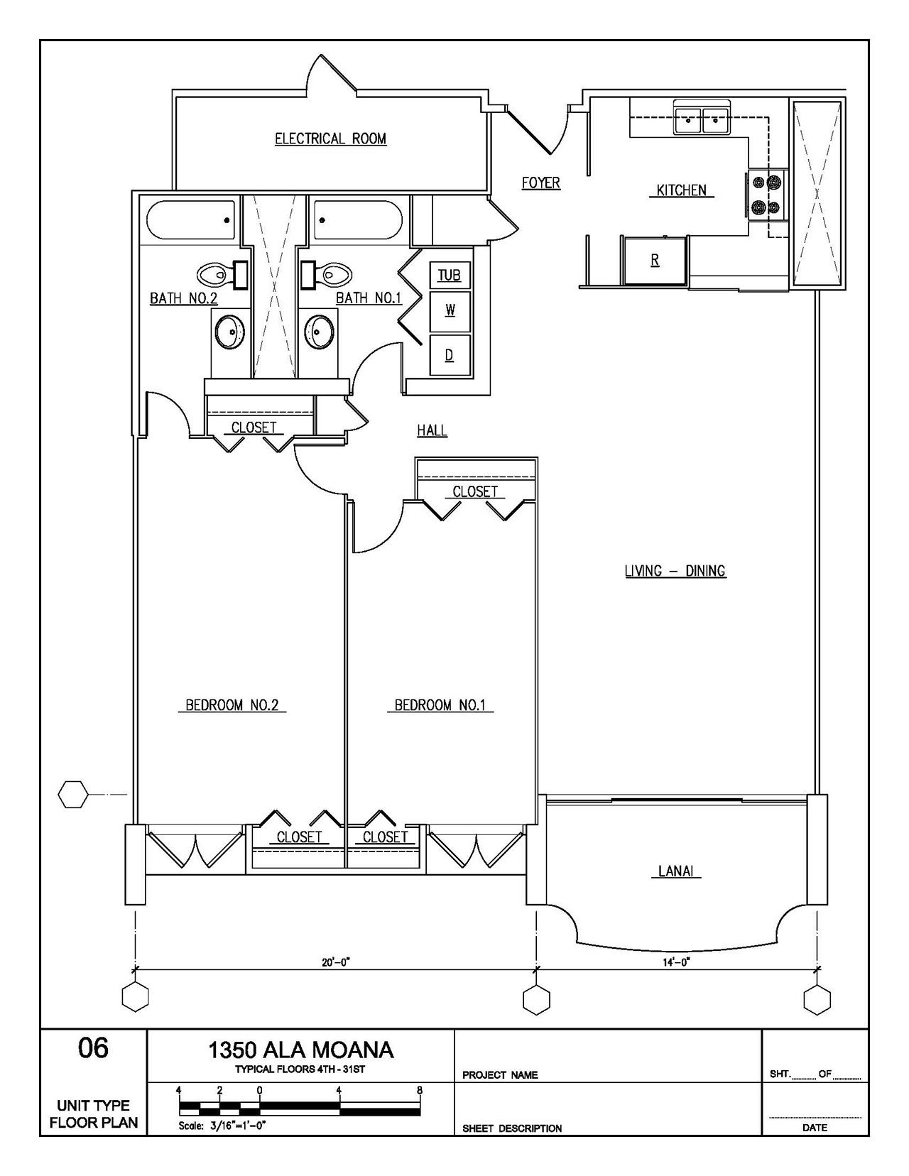
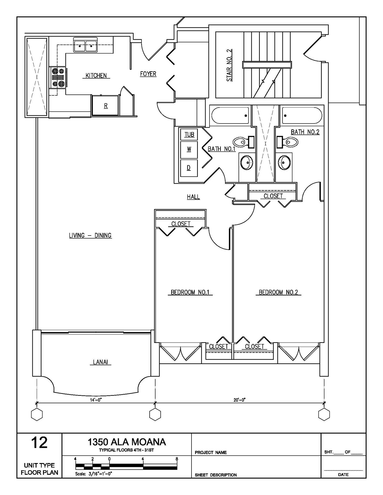
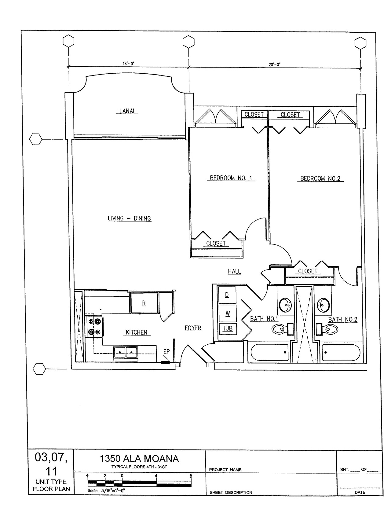
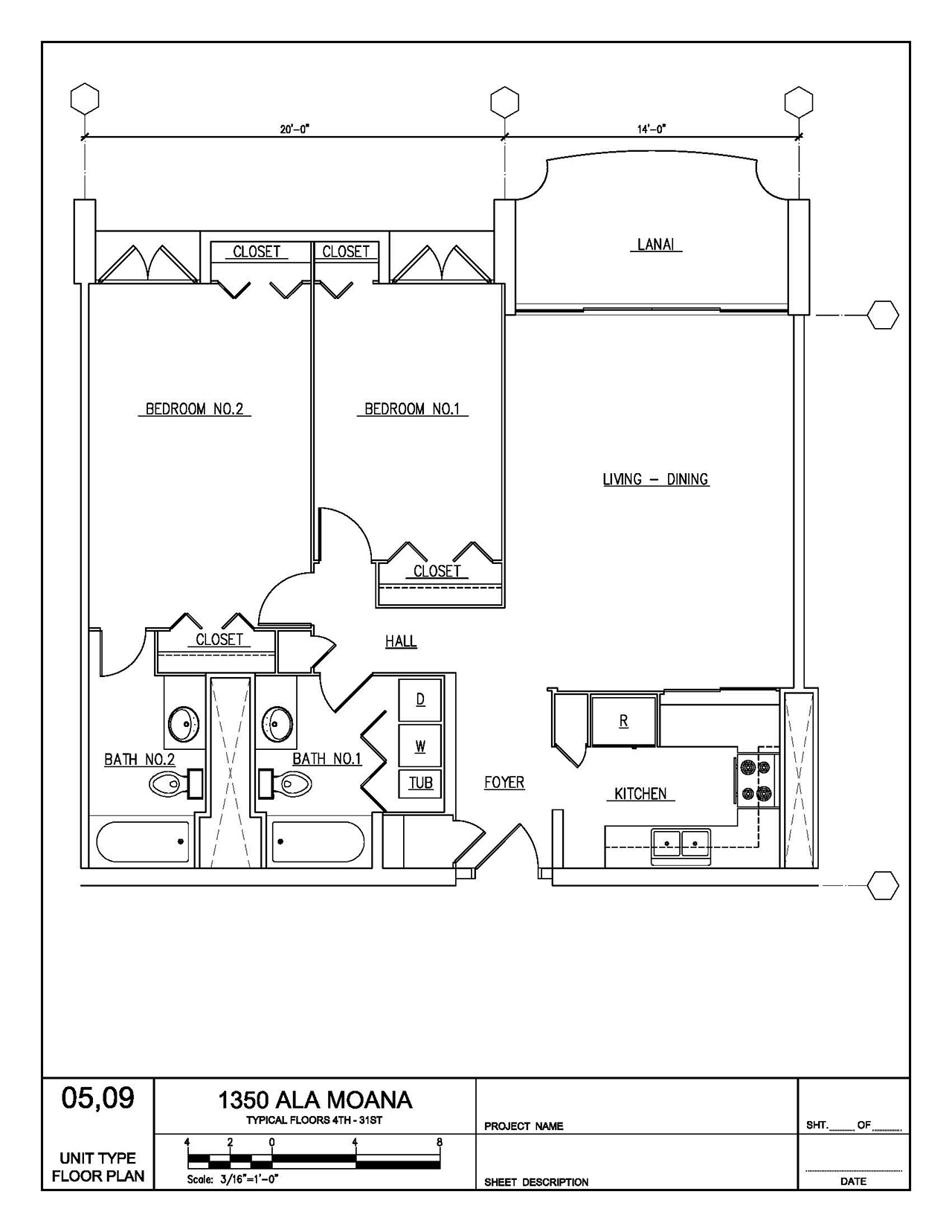
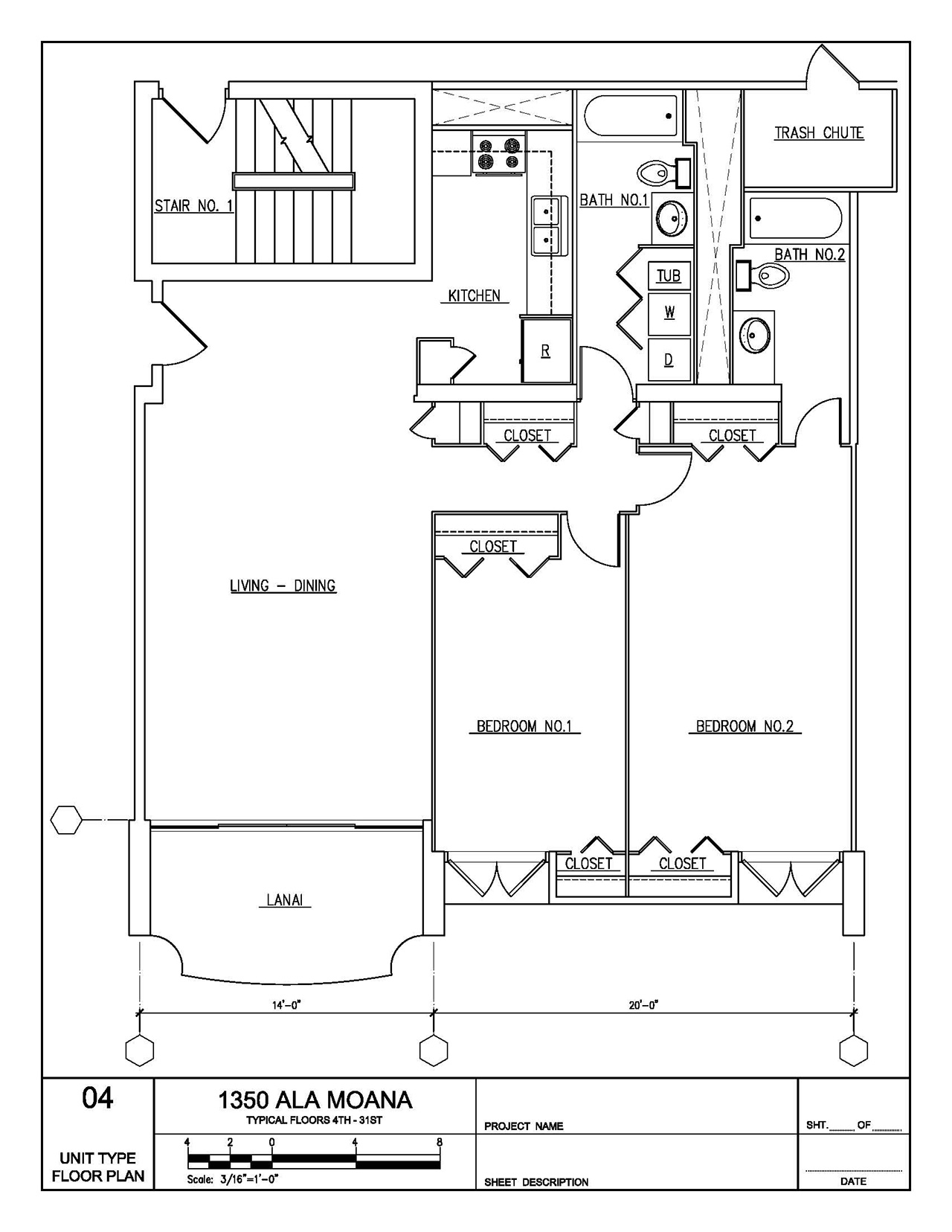
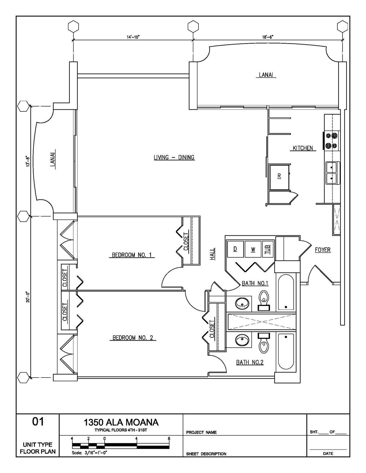
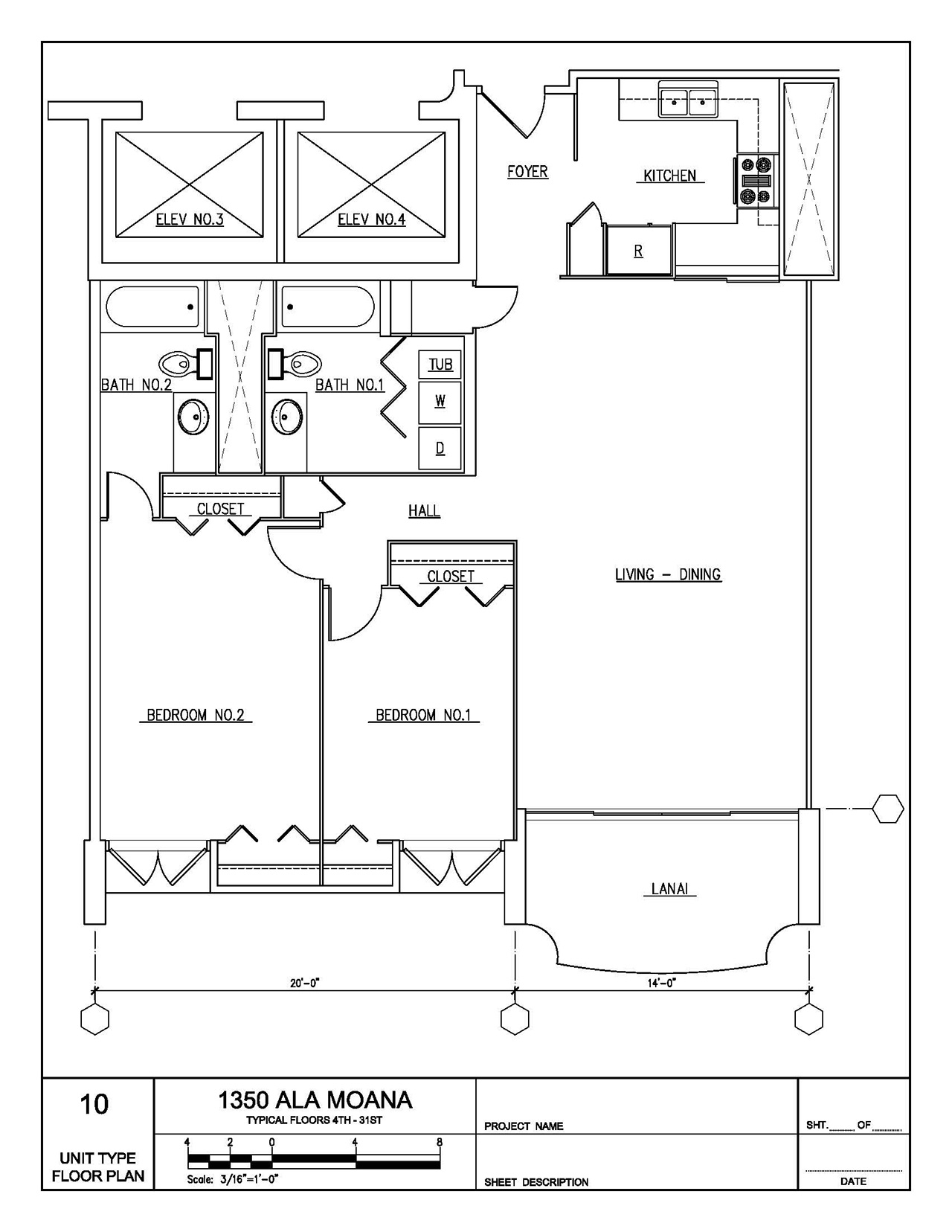
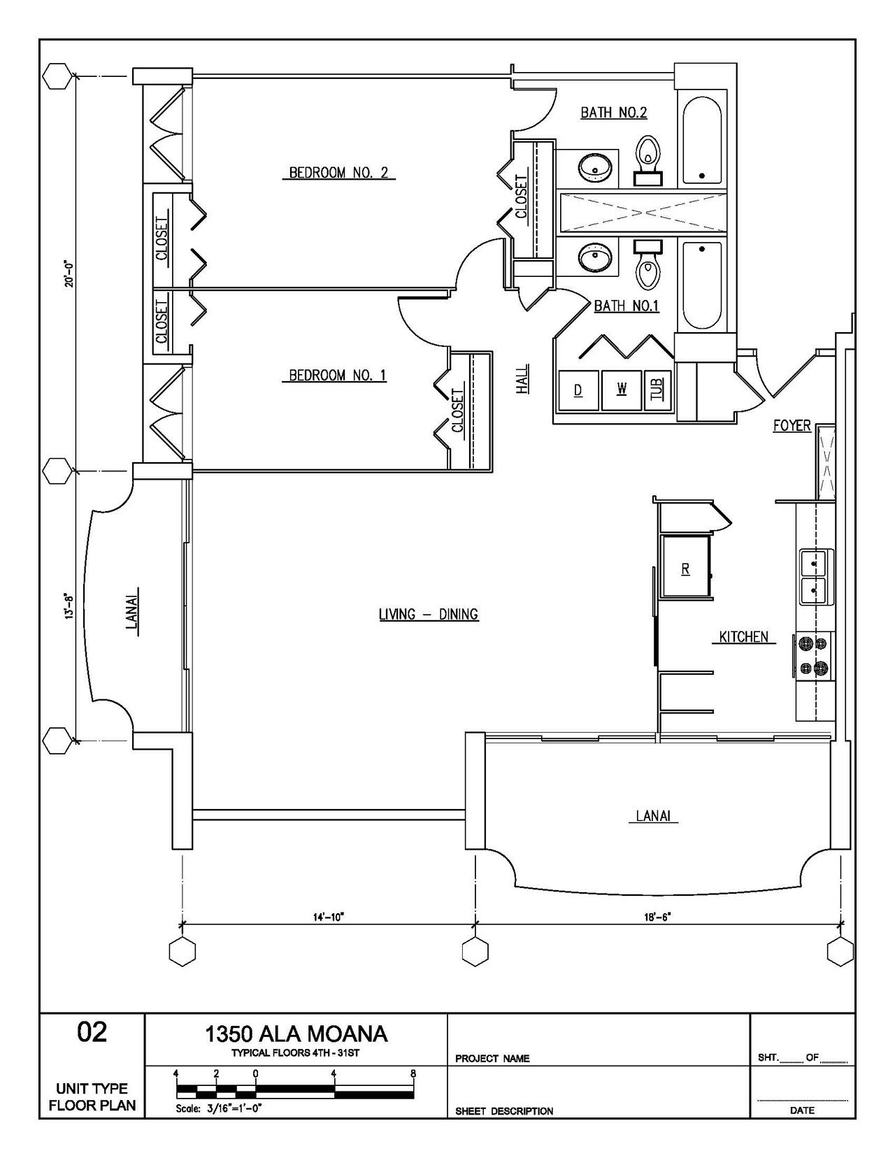
| 유닛 구성図 | 01호 유닛 02호 유닛 03, 07, 11 호 유닛 04 호 유닛 05, 09 호 유닛 06 호 유닛 08호 유닛 10 호 유닛 12호 유닛 | ||
| 추가 설명 | 가격 대비 인기 높은 리조트형 콘도 고급 콘도들이 밀집한 카카아코 지역에 위치해 있으면서도 주변 콘도들과 비교해 가격이 합리적인 점 때문에 리조트형 세컨드 하우스나 현지 거주자들 사이에서 꾸준한 인기를 유지하고 있습니다. 모든 유닛은 2베드룸 구조로 되어 있으며, 올드 하와이 스타일의 리조트 별장 분위기를 선호하는 분들에게 이상적인 콘도입니다. 모든 유닛에는 넓은 베란다가 딸려 있어 탁 트인 개방감을 느낄 수 있습니다. 또한, 유닛 위치에 따라 다이아몬드 헤드, 알라모아나 비치파크, 오션뷰를 감상할 수 있으며, 호실 번호 끝자리가 짝수인 유닛은 다이아몬드 헤드 방향입니다. 생활 편의 관리비 포함 항목 |
||









